architecture | interior design//arquitectura | interiorismo
CASA+ESTERO+7.jpg

CASA ESTERO

CASA ESTERO

Project//Proyecto

252 sq.m., Ensenada, B.C., 2020//252m2, Ensenada, B.C., 2020

Casa Estero, located in Ensenada, Baja California was planned as a vacation home.//Casa Estero fue planeada como una casa vacacional ubicada en Ensenada, Baja California.

We designed a house with no luxuries; spacious but simple where family and friends could relax and get together.  The common areas become a big social space that visually connects to the patio through glass doors.//Se diseñó una casa sin ostentosidades; una casa amplia pero sencilla, donde familiares y amigos pudieran llegar a relajarse y convivir.  Las áreas comunes se convierten en un espacio social que se conectan al patio visualmente por medio de puertas de vidrio.

On the ground floor we can find the living room, dining room, kitchen, half bathroom, laundry room, patio and a master bedroom with its own bathroom and walk in closet.  On the second level there are three bedrooms with their own bathroom and an extra bedroom for visitors.//En planta baja se cuenta con sala, comedor, cocina, medio baño, cuarto de servicio, patio y una recámara master con su baño completo y walk in closet.  En el segundo nivel se encuentran tres recámaras con baño propio y una recámara extra para visitas.

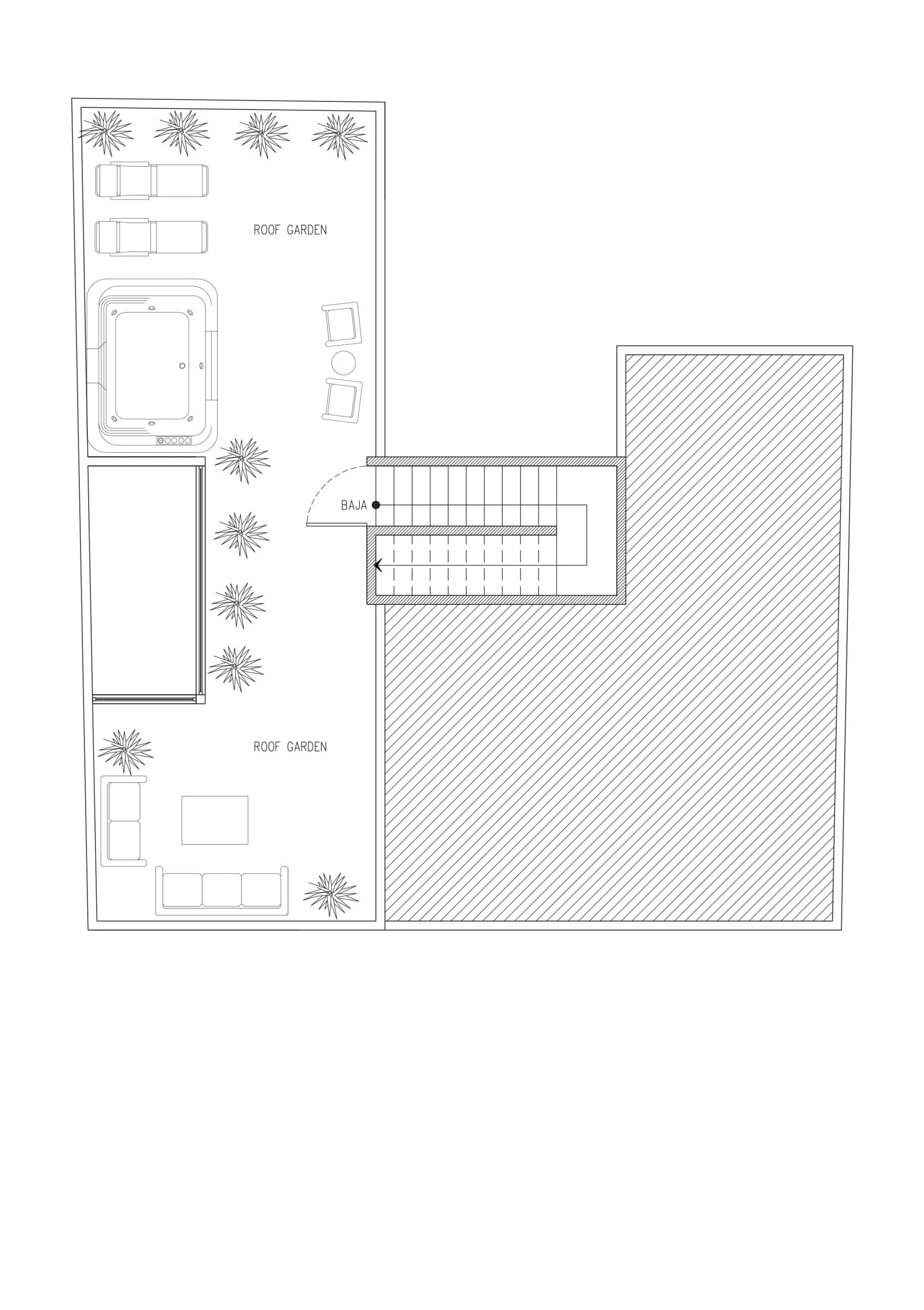
Last but not least, the third level becomes a roof garden with a jacuzzi, lounge chairs and an outdoor living room.//Finalmente en el tercer nivel podemos encontrar el roof garden con un jacuzzi, camastros y sala exterior para convivir y disfrutar del clima y vistas.

PRIMER NIVEL // FIRST LEVEL

PRIMER NIVEL // FIRST LEVEL

SEGUNDO NIVEL // SECOND LEVEL

SEGUNDO NIVEL // SECOND LEVEL

ROOF GARDEN // ROOF GARDEN

ROOF GARDEN // ROOF GARDEN